Logo 知识与财富的链接
长江漫滩高承压水地层悬挂式帷幕深基坑变形规律研究

长江漫滩高承压水地层悬挂式帷幕深基坑变形规律研究

ISSN:1004-9665
2025年第33卷第2期
詹胜文;丁苏南;任文明;王丽;赵凯 ZHAN Shengwen;DING Sunan;REN Wenming;WANG Li;ZHAO Kai
①.中国石油天然气管道工程有限公司,廊坊 065000,中国;②.南京工业大学岩土工程研究所,南京 210009,中国 ①.China Petroleum Pipeline Engineering Corporation, Langfang 065000, China;②.Institute of Geotechnical Engineering, Nanjing Tech University, Nanjing 210009, China

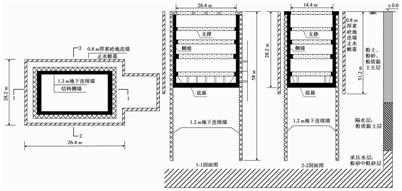
长江漫滩地层悬挂式帷幕深基坑的减压降水和开挖施工存在复杂的地层应力-孔隙非稳定流耦合效应。以漫滩区典型二元特征地质条件下某悬挂式帷幕基坑工程为背景,基于Biot固结理论,考虑由降水引起单元土骨架体积应变和孔隙水压力变化的源汇项,建立了一个可描述基坑开挖和降水耦合作用的流-固耦合数值分析模型,研究了基坑降水开挖耦合变形的一般特征,重点分析了井点布置方式和地下连续墙插入比对基坑变形的影响规律。结果表明:(1)在减压降水阶段为了在坑底达到同样降深,对于坑内降水,地下连续墙延长了坑外补给路径,因此地下连续墙插入比越大,地表沉降越小;而对于坑外降水,地下连续墙延长了渗流路径,地下连续墙插入比越大,地表沉降越大;坑内外联合降水介于两者之间;(2)当基坑开挖完成时,地表总沉降由降水引起的沉降和基坑开挖引起的沉降组成,且后者占主要部分;地下连续墙插入比对于基坑开挖阶段地表沉降的影响显著大于对于减压降水阶段地表沉降的影响。(3)减压降水可有效减小承压含水层顶板的浮托力,同时导致土层发生二次固结,引起有效应力增加,提高了土层的强度和刚度,有效的减小了基坑开挖阶段地层的变形。(4)降水方式及地下连续墙插入比对地下连续墙的侧移几乎没有影响。


Dewatering and pit excavation with suspended curtain in Yangtze River floodplain area involve complex stress-flow coupling effect. Based on Biot's consolidation theory and considering the source terms of the pore water pressure caused by dewatering,a fluid-solid coupling numerical analysis model is established to describe the coupling effect of pit excavation and dewatering. The general deformation characteristics of pit excavation and dewatering are studied. The influences of drainage well arrangement and diaphragm wall insertion ratio are analyzed. The results show that:(1)In the stage of dewatering,for the case with dewatering well inside the pit,the diaphragm wall extends the water supply path. The larger the insertion ratio of the diaphragm wall is,the smaller the surface settlement is. For the case with dewatering well outside the pit,the diaphragm wall extends the seepage path.
The larger the insertion ratio of the diaphragm wall is,the greater the surface settlement. For the case with dewatering well inside and outside the pit,the surface settlement is inbetween the two cases. (2)When the pit excavation is completed,the total surface settlement is caused by dewatering and the pit excavation,and the latter dominates. The effect of diaphragm wall insertion ratio on the ground settlement during pit excavation is significantly greater than that during dewatering. (3)Dewatering can effectively reduce the roof buoyancy of the confined aquifer,and lead to secondary consolidation of the soil layer,resulting in an increase in effective stress and the strength/stiffness of the soil layer,and effectively reducing the deformation of the stratum during the pit excavation. (4)Dewatering mode and diaphragm wall insertion ratio have little effect on the lateral displacement of diaphragm wall.

认领
收 藏
点 赞
认领进度
0 %

发表评论

ISSN:1004-9665
2025年第33卷第2期

用户信息设置